churchill tower

- Completed Project
Welcome to Churchill Tower
Business Bay , Dubai
Where sky-high ambitions dwell and pioneering deals are sealed, Business Bay is a sought-after location. In close proximity to Dubai’s iconic Burj Khalifa as well as The Dubai Mall, set within this dynamic living environment and surrounded by glittering skyscrapers is ENI’s Churchill Towers – an architectural masterpiece featuring a twin-tower mixed-use development offering two impressive buildings and spread over 2.5 million square feet of built-up area.Churchill Towers stands out with its distinctive and appealing design; the residential tower has 56 levels while the commercial tower has 42 levels. Churchill Executive Tower, a renowned landmark in Business Bay with a reputable address, is well equipped with sophisticated office spaces which serve as head offices to prominent multinational companies.

✦ Churchill Tower
Where Elegance Meets Escape
Churchill Towers - Emirates National InvestmentChurchill Towers is a mixed-use development in Business Bay, Dubai, featuring two distinct buildings: Churchill Residency, a 59-floor residential tower, and Churchill Executive, a 43-floor office building. Developed by Emirates National Investment (ENI), the complex offers luxurious apartments and sophisticated office spaces within Dubai's prominent business district, close to the Burj Khalifa and Dubai Mal

21 mins to Palm Jumeirah

10 mins to Dubai Mall

42 mins to Maktoum International Airport.

21 mins to Dubai International Airport (DXB).



Enquire Now
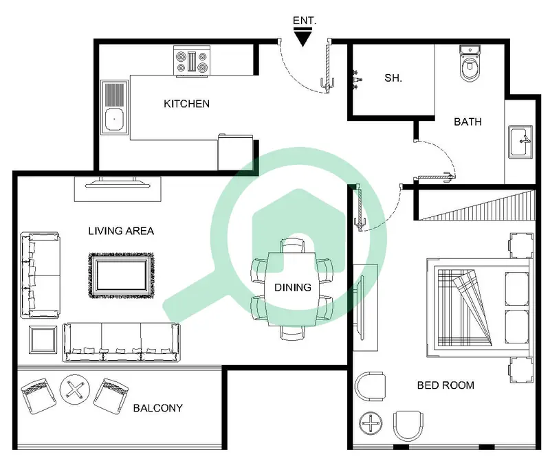
Units Availability
| Type | Asking Price | Size | Status |
|---|---|---|---|
| 2 Bedroom | AED 2.4 M | 1471.96 Sq Ft | Avaliable |







